










































Va propunem un apartament spre vânzare în com. Baciu, zona Restaurantului Regal.
*Prima imagine este cu titlu de prezentare si este o posibila viziune asupra apartamentului, el se vinde finisat, dupa cum se observa in urmatoarele poze
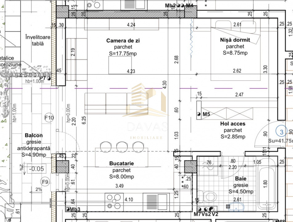
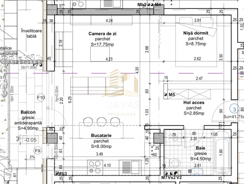
Este un apartament de o camera semidecomandat, situat la etajul 2 dintr-un imobil cu regim P+2+ER, cu următoarele caracteristici:
Suprafață și compartimentare:
- Apartamentul este semidecomandat, cu o compartimentare modernă și funcțională, ideală pentru un cuplu sau o persoana singura.
- Dispune: de un living spațios conectat cu bucătăria, nisa de dormit, baie și balcon, pe o suprafata utila totala de 47,35 mp.
- Încălzire în pardoseala, oferind confort termic optim și costuri eficiente de întreținere + centrală pe imobil cu contorizare separată.
- Parcare subterana inclusă în pret
Se preda la stadiul de finisat.
CF-ul va ieși în luna Mai - Iunie.
Prețul și locația fac din acest apartament o oportunitate excelentă.
Contactați-ne pentru a profita de experiența noastră și pentru a începe o colaborare de succes!
ID Intern Davas Imobiliare: P245401