


































Davas Imobiliare va propune un apartament semifinisat spre vânzare în zona Terra | Florești , Cluj-Napoca. Este un apartament de 2 camere semidecomandat, situat la etajul 2 din 3, cu următoarele caracteristici:
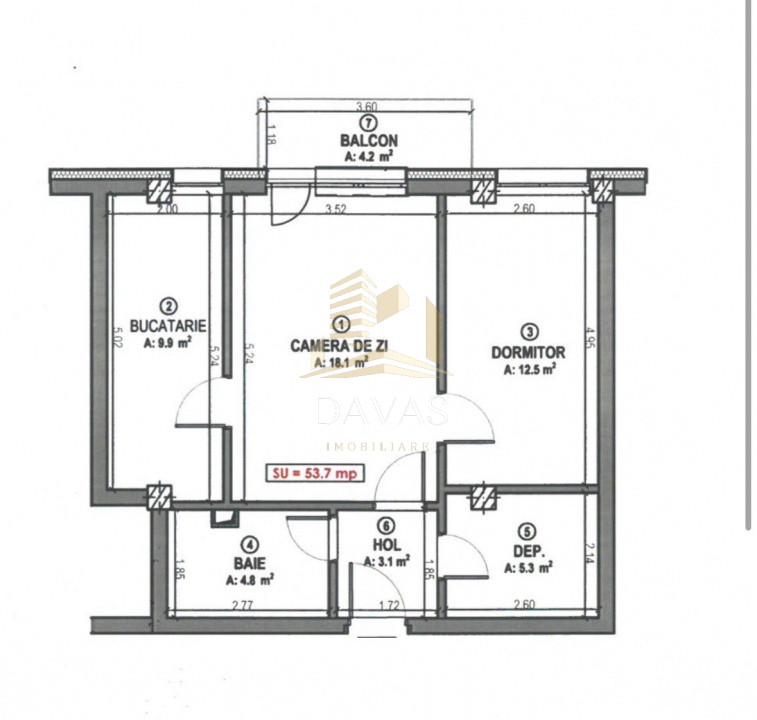
Suprafață și compartimentare: Apartamentul este semidecomandat, cu o compartimentare modernă și funcțională, ideală pentru un cuplu sau o familie mică. Dispune: de un living spațios cu trecereconectat cu bucătăria, 1 dormitoar separat, dressing generos,baie și balcon, pe o suprafata utila de 53,7 mp.
Încălzire prin calorifere cu centrală proprie, oferind confort termic optim și costuri eficiente de întreținere.
Parcare exterioară disponibilă la prețul de 4.000€, un mare avantaj în zona aglomerată a Clujului.
Locație excelentă: Apartamentul este situat in zona Terra | Florești , oferind acces facil la spații verzi, zone de recreere, centre comerciale, școli și mijloace de transport în comun.
Prețul și locația fac din acest apartament o oportunitate excelentă.
Contactați-ne pentru a profita de experiența noastră și pentru a începe o colaborare de succes!