







Davas Imobiliare vă prezintă un apartament elegant, cu 4 camere, situat în inima Clujului, pe strada Eroilor, la etajul 1 intr-un palat tip baroc ce păstrează farmecul istoric al orașului.
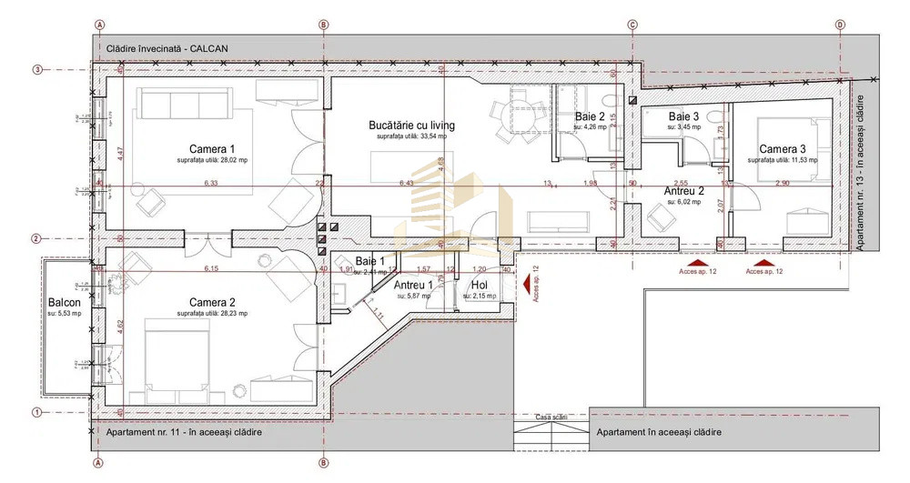
Cu o suprafață utilă de 125,48 mp, locuința îmbină perfect eleganța arhitecturală de epocă cu confortul modern. Fiecare metru pătrat este valorificat inteligent, oferind un spațiu generos, luminos și plin de personalitate.
Ce vei găsi aici:
Un living spațios și luminos, cu tavan înalt de 4,5 metri, ce păstrează detalii arhitecturale originale.
Dormitoare elegante, dintre care unul cu balcon spre strada Eroilor – un loc de unde poți urmări spectacolul urban al orașului.
O bucătărie generoasă, cu luminator în tavan ce aduce lumină naturală și creează o atmosferă caldă.
Trei băi moderne, complet renovate, plus spații de depozitare și holuri bine gândite.
Finisaje atent alese, îmbinate armonios cu elementele istorice – de la soba neorenascentistă până la feroneriile originale restaurate.
Avantaje zonă & facilități:
Proprietatea se află în centrul istoric al Clujului, într-o zonă emblematică ce oferă acces imediat la restaurante, cafenele, evenimente culturale și spații verzi.
Poziționarea de excepție face ca apartamentul să fie potrivit atât pentru locuință exclusivistă, cât și pentru birou elegant, cabinet de avocatură sau showroom de prezentare.
Dispune de centrală termică proprie, instalații noi (termice, electrice, sanitare) și sistem de supraveghere.
Recomandarea noastră:
Acest apartament nu este doar un simplu spațiu locativ, ci o operă arhitecturală ce oferă un stil de viață unic, în inima orașului.
O alegere ideală pentru cei care apreciază valoarea istoriei, rafinamentul detaliilor și energia Clujului vechi, într-un spațiu complet modernizat.