










Davas Imobiliare vă prezintă o casă cu 4 camere, situată în cartierul Dambul Rotund zona strazii Lombului
Această proprietate oferă o suprafață utilă de 195 mp, fiecare metru pătrat fiind gândit pentru a asigura confort, funcționalitate și un stil de viață modern.
Structura imobilului va fi din zidarie de caramida de 25 cm, polistiren de 15 cm, tamplarie termoizolanta - geamuri termopan cu 7 camere. Fiecare unitate locativa se va preda la stadiul de semifinisat, centrala termica proprie, incalzire prin pardoseala pe toate zonele cu centrala pe gaz, instalatiile electrice si sanitare trase pe pozitie, acoperis din tigla, iar exteriorul amenajat. Imobilul va corespunde standardelor NZEB.
Casa este amplasată pe un teren de 180 mp, oferind o curte privată perfectă pentru relaxare, grădinărit sau petrecerea timpului în aer liber alături de familie.
Compartimentarea este bine gândită, asigurând o bună separare între zona de zi și cea de noapte. Livingul spațios și luminos creează o atmosferă primitoare, iar bucătăria poate fi amenajată după preferințele viitorilor proprietari.
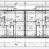
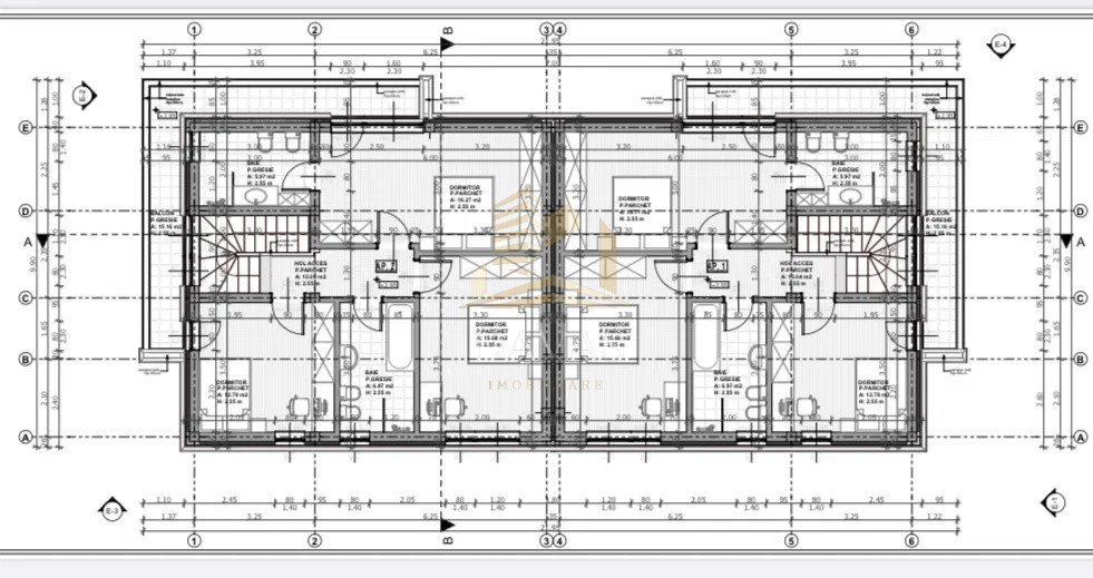
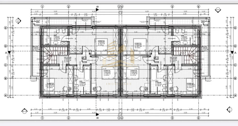
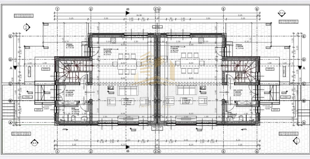
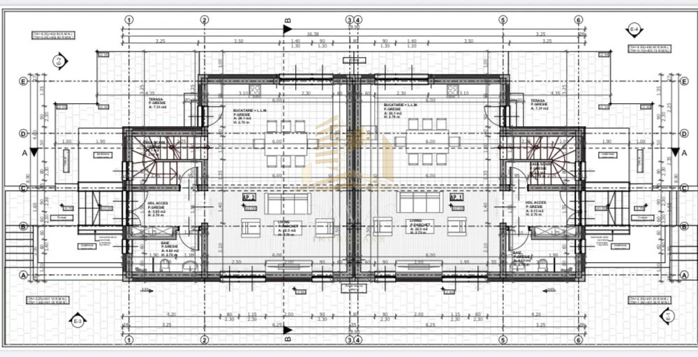
Compartimentarea este urmatoarea:
• Demisol: Garaj pentru 2 masini, 2 spatii tehnice
• Parter: Terasa, Hol acces, Bucatarie, Baie, Living cu loc de luat masa
• Etaj: Dormitor de matrimoniu cu baie proprie, 2 Dormitoare, Baie, balcon cu priveliste inspre oras + pod utilizabil
Proprietatea dispune și de o terasă ideală pentru momente de relaxare sau pentru a savura cafeaua de dimineață în aer liber.
Accesul este facil către principalele puncte de interes ale orașului: școli, magazine, spații verzi, restaurante și mijloace de transport în comun.
Casa se va preda la stadiu de semifinisat.
Termenul pentru extrasele CF individuale este preconizat pentru septembrie 2026.
Această casă este alegerea ideală pentru cei care caută liniște, confort și o locuință practică într-o zonă bine poziționată.
Contacteaza-ne cu incredere pentru o colaborare de succes!