






























Vă oferim spre închiriere un spațiu comercial ideal pentru servicii medicale, salon de infrumusetare, showroom, activități comerciale, birouri.
Acesta este situat în Cluj-Napoca, cartier Andrei Muresanu, într-o zonă cu trafic pietonal și auto intens, cu vizibilitate pentru afacerea dumneavoastra.
Poziționarea este excelentă, în zona Cipariu, una dintre cele mai active zone comerciale ale orașului.
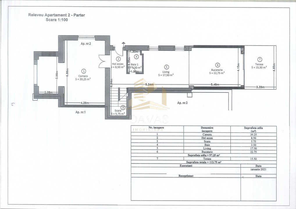
Suprafata utila este de 97.25 mp la care se adaugă o terasa de 15.50 mp, iar pretul de inchiriere este sub _ Euro/ mp.
Compartimentare:
- 2 sali principale, una fiind cu bucătărie
-1 baie
-1 depozit
Dotări și avantaje:
- Spatiu verde în curtea interioară a clădirii
-centrală termică proprie + încălzire în pardoseala
-înălțime interioară 3 m
Potrivit pentru:
- Birou avocatură / notar / contabilitate
- Firmă IT / marketing / arhitectură (echipă mică)
- Consultanță business / financiară
- Cabinet psihologie / coaching / nutriție
- Agenție imobiliară / asigurări
- Birou proiectare / design interior
- Showroom premium cu programare
- și orice alte activități cu trafic moderat
Spațiul verde este dotat cu sistem de irigație, iar întreținerea acestuia revine chiriașului, la solicitarea proprietarului.
Garantia este echivalenta chiriei - 1500 euro.
Pentru detalii suplimentare sau programarea unei vizionări, vă rugăm să ne contactați.
ID Intern: P256197