





































































Davas Imobiliare va propune un apartament spre vânzare în zona Baciu.
Este un apartament de 3 camere semidecomandat, situat la ultimul etaj al unui imobil cu regim P+2+ER, cu următoarele caracteristici:
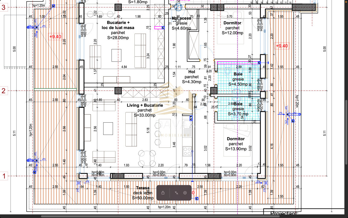
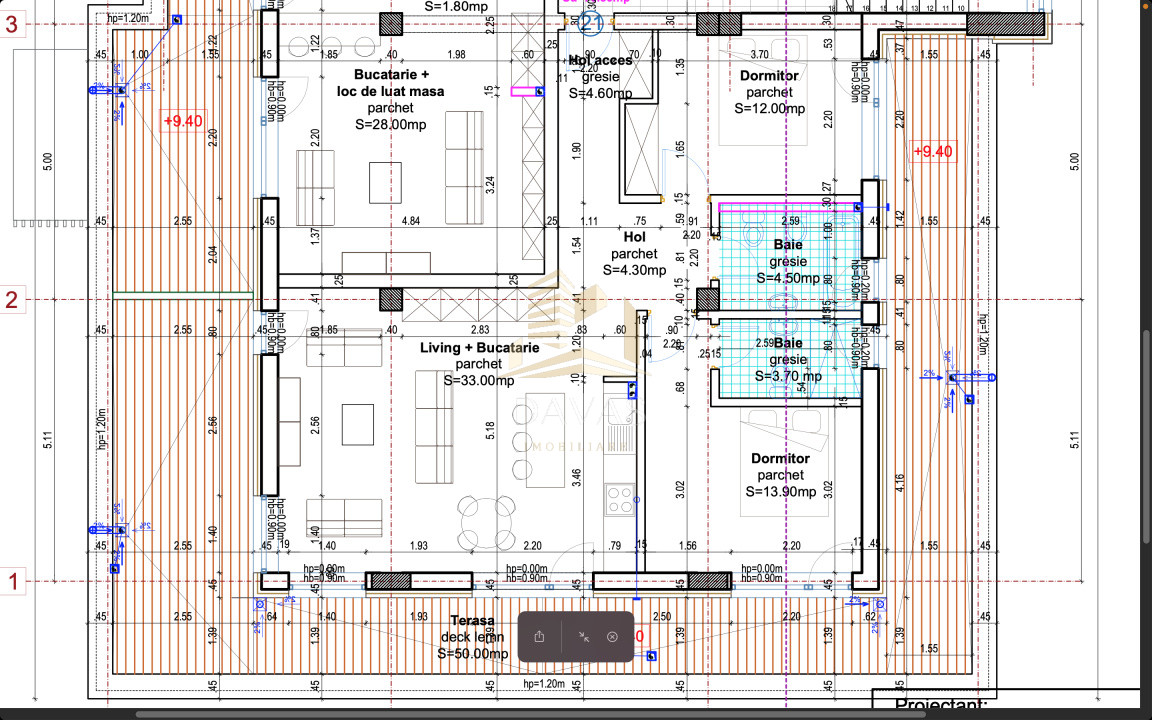
Suprafață și compartimentare:
- Apartamentul este semidecomandat, cu o compartimentare modernă și funcțională, ideală pentru un cuplu sau o familie.
- Dispune: de un living spațios conectat cu bucătăria, 2 dormitoare, 2 bai, dressing, hol, terasa, pe o suprafata utila totala 127.50 de mp.
- Încălzire în pardoseala, oferind confort termic optim și costuri eficiente de întreținere. Centrală pe imobil cu contorizare separată.
- Parcare disponibilă exterioara la 7000 €+ TVA , exterioara acoperită la 7500 euro sau subterana la prețul de 8500 €+ TVA , un mare avantaj.
- Tamplarie de la VEKA.
- Terasa este contra-cost: 200 euro/ mp + TVA
Se accepta și CREDIT IPOTECAR
Prețul și locația fac din acest apartament o oportunitate excelentă.
Contactați-ne pentru a profita de experiența noastră și pentru a începe o colaborare de succes!
La pretul afisat se mai adauga TVA de 21%.
ID Intern Davas Imobiliare: P213490