




















Va prezentam un apartament spre vânzare în zona Baciu.
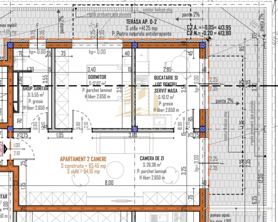
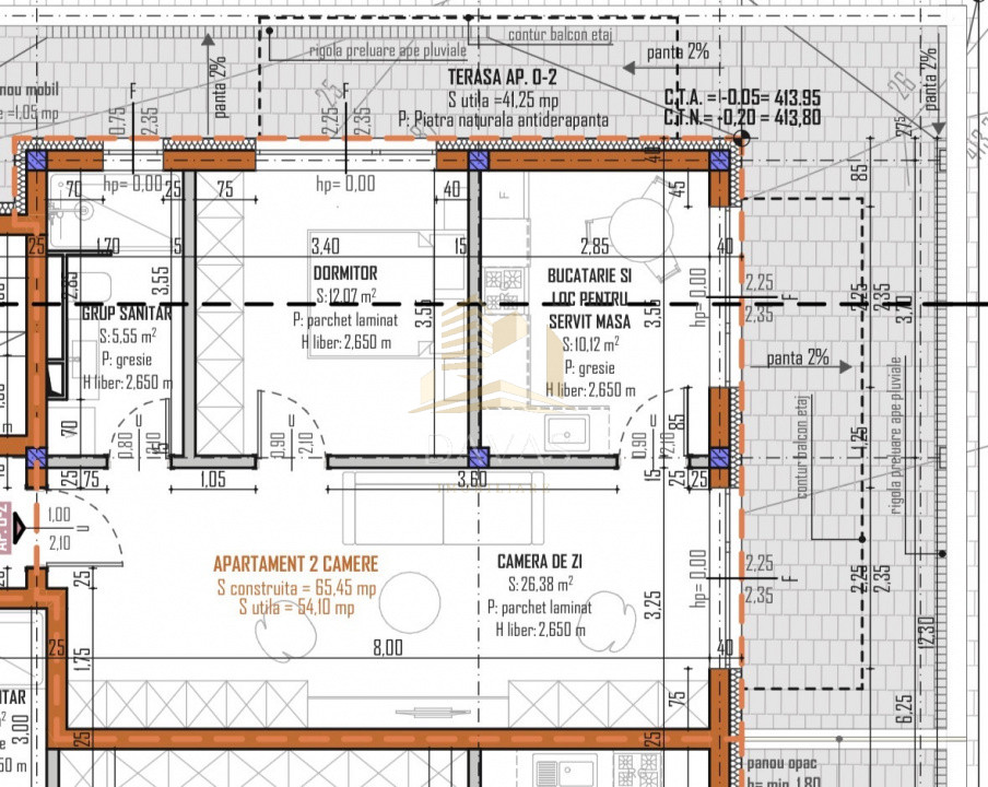
Este un apartament de 3 camere semidecomandat, situat la parter dintr-un imobil cu regim P+1+M, cu următoarele caracteristici:
Suprafață și compartimentare:
- Apartamentul este semidecomandat, cu o compartimentare modernă și funcțională, ideală pentru un cuplu sau o familie.
- Dispune: de un living spațios conectat cu bucătăria, 2 dormitoare, baie, și terasa, pe o suprafata utila de 54,10 mp.
- Încălzire în pardoseala, oferind confort termic optim și costuri eficiente de întreținere. Centrală proprie.
- Parcare disponibilă subterana la 8000 euro [ TVA inclus ]
- Orientare: S-E
- Terasa: 43,80 mp
- Bloc de caramida
- Tamplarie GEALAN
Dispune de Carte Funciara.
Prețul și locația fac din acest apartament o oportunitate excelentă.
Contactați-ne pentru a profita de experiența noastră și pentru a începe o colaborare de succes!
ID Intern Davas Imobiliare: P214963